parramon+tahull arquitectes
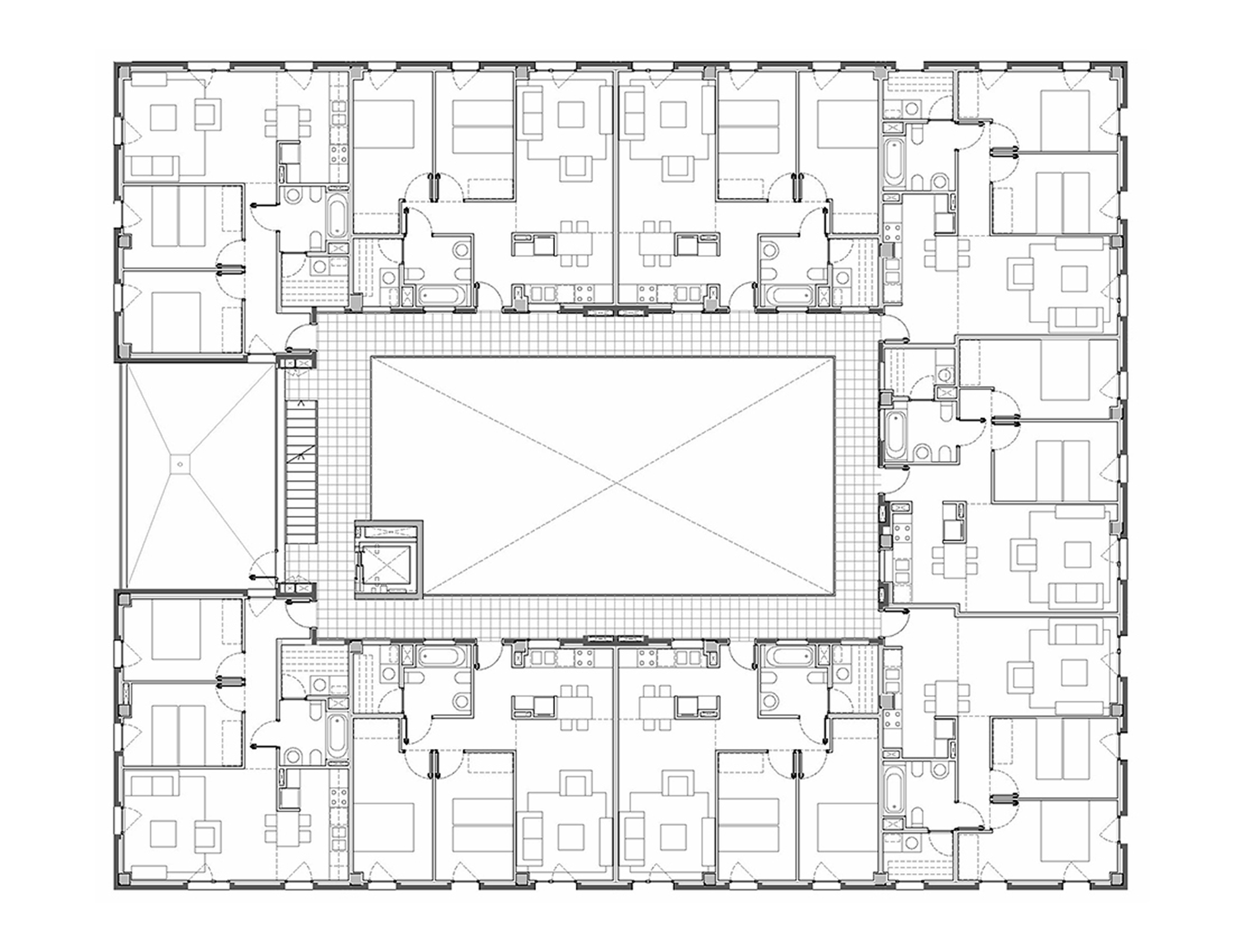
Edifici plurifamiliar de 45 habitatges protegits a Figueres, Girona
+info:
ENG
SPA
CAT