parramon+tahull arquitectes
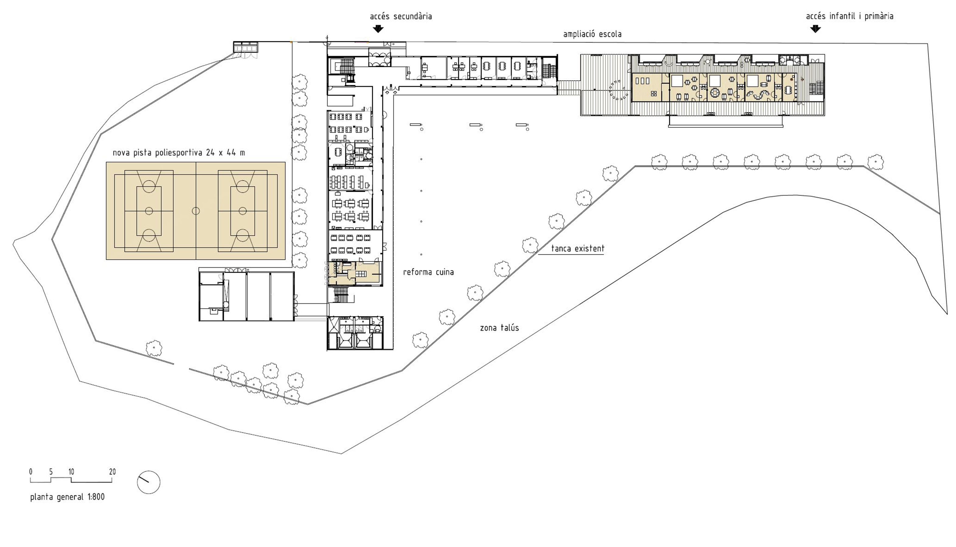
Institut escola Calderí-Pic del Vent a Caldes de Montbui. Barcelona
+info:
ENG
SPA
CAT